- You Are Here:
- Home
- Your Government
- Departments
- Community Development
- Current Developments
- Vendra Gardens / Essex
Vendra Gardens Apartments
NOTE: Inquiries related to rentals at the property should be directed to Danco. They will manage the application process and selection of tenants. The project is currently in the lease-up process and is estimated to be fully completed in 2025/2026. The City will not be managing the project or the rental of the site to future tenants.
Any questions related to rentals/lease-up at Vendra Gardens should be directed to: vendragardens@danco-group.com or by calling (805) 328-8631.
By clicking the link below, you can access and complete an application for Vendra Gardens. It must be mailed or faxed to the addresses listed at the top of the application.
| CLICK HERE FOR APPLICATION |
Description
On October 1, 2012, an application was submitted to construct a 200-unit apartment project. An earlier project, with a similar development had previously been approved on the site, but has since expired. On March 1, 2017, the City Council adopted Resolution No. 2017-3582 approving the RPD. On March 1, 2017, the City Council approved the AHA for the Project. On March 15, 2017, the City Council adopted Ordinance No. 443 approving the DA.
On June 7, 2021, an application was filed by Essex Moorpark Owner L.P. to request the First Amendment to the DA. On September 15, 2021, the City Council adopted Ordinance No. 490 approving the First Amendment to the DA. The request included: change the approved-residential project to be fully affordable; and finance certain City development impact fees in the form of a 55-year residual loan.
On September 19, 2022, an application made by Danco Communities on behalf of the Essex Moorpark Owner L.P. was submitted to request the second amendment to the DA. The following changes were requested; allow use of income-restricted rental rates published by California Tax Credit Allocation Committee (TCAC), as opposed to the California Department of Housing and Community Development (HCD) in the DA and RARAHA; change in the income-restricted unit mix percentages in the DA and RARAHA; revise Section 10 to correct the description of the City Site which is to be conveyed to the City as part of the Project; attach an exhibit to show the form and content of the “Offsite Improvement Performance and Payment Bond”; and, Remove the requirement to relocate or underground utility facilities from the DA. On October 19, 2022, the City Council approved the proposed second amendment to the DA, with exception of the request to remove the requirement to underground utilities.
On December 27, 2022, an application was submitted to request the Third Amendment to the Development Agreement to change the date outlined in Section 2 of the Second Amendment to extend the date of December 31, 2022 to June 30, 2023 to complete the purchase and sale of the Project and property from Danco Communities.
On March 29, 2023, an application was submitted to request the Fourth Amendment to the Development Agreement to change language related to A) to update language in the DA to better describe: a) the assessment districts’ boundaries, b) the emergency and secondary access and pedestrian walkway across the City Site, c) the terms “residual receipts”, “gross revenue”, and “annual operating expenses”, and d) the stormwater / flood detention basin construction and use.
For more information about this project or to be included in future meeting announcements, please contact Douglas Spondello, AICP, Community Development Director, (805) 517-6251 or DSpondello@Moorparkca.gov.
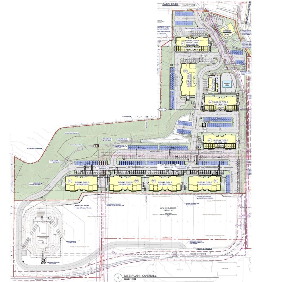
Site Plan
Color Renderings
Environmental Review
Pursuant to the California Environmental Quality Act (CEQA), an Initial Study/Mitigated Negative Declaration (MND) has been prepared to analyze any potentially significant environment impacts. The current Project relied upon an earlier prepared MND adopted on July 18, 2007 pursuant to Resolution No. 2007-2611.
Documents
- Development Agreement (Original)
- First Amendment to Development Agreement
- Second Amendment to Development Agreement
- Third Amendment to Development Agreement
- Fourth Amendment to Development Agreement
- Original Architectural Plans
- Original Color Renderings
- First Amendment Site Plan Revision
Contacts:
Project Planner
Doug Spondello, AICP
Community Development Director
(805) 517-6251
DSpondello@moorparkca.gov
Project Applicant/Agent
Moorpark Casey Road, LP (Owner)
McKenzie Dibble, Danco (Builder)
(949) 929-8407
mdibble@danco-group.com
UPDATE (JUNE 2025):
By clicking the link below, you can access and complete an application for Vendra Gardens. It must be mailed or faxed to the addresses listed at the top of the application.
Any questions related to rentals at Vendra Gardens should be directed to Sarah Brodhag at sarahbrodhag@danco-group.com or Trena Miller at tmiller@danco-group.com. You may also call the lease-up number at (707) 362-7889.
Click Here For Application
Inquiries related to rentals at the property should be directed to Danco. They will manage the application process and selection of tenants at a later date. The project is under construction and is estimated to be completed in 2025/2026. The City will not be managing the project, or the rental of the site to future tenants. Contact Sarah Brodhag sarahbrodhag@danco-group.com or Trena Miller tmiller@danco-group.com with specific questions, or call the lease-up number at (707) 362-7889.