Everett Street Terraces

Section Color Image

Description

A request for approval of a Downtown Specific Plan Amendment, Residential Planned Development, Tentative Map, and Development Agreement for the development of a sixty (60) unit multi-family residential condominium project on an approximately 2.4 acre site.  The two-story terraced residential condominium project is located at the northeast corner of Everett Street and Walnut Canyon Road and features a subterranean garage, an outdoor swimming pool, play area and landscape and hardscape site improvements. The Project was approved by City Council on September 7, 2022.  The Ordinance associated with the Project was heard for second reading by the City Council on September 21, 2022.  The Project is therefore approved.  

For more information about this project or to be included in future meeting announcements, please contact Douglas Spondello, AICP, Community Development Director, (805) 517-6251 or DSpondello@Moorparkca.gov.

  Everett Street Terraces Front Elevation

Status

Step 4 - Approved

Site Plan

Landscape Plan Site Plan Everett Street Terraces



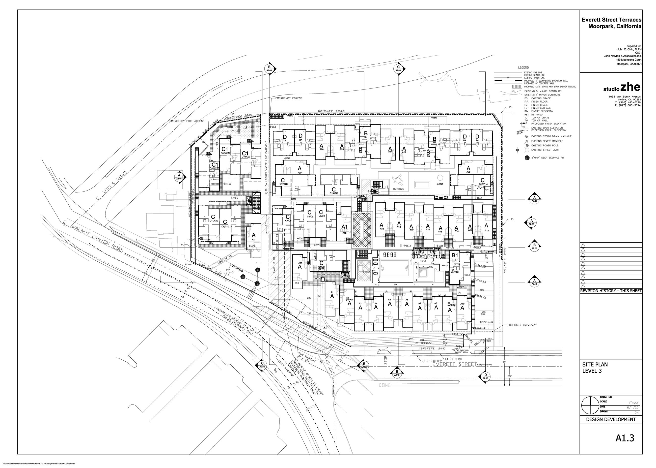
Everett Street Terraces Site Plan

Details

  • 60 Residential Condominium Units
  • Subterranean Parking
  • 2.4-acre site
  • Outdoor Pool
  • Play Area

Project Map

Everett Project

Environmental Review 

Pursuant to the California Environmental Quality Act (CEQA), an Initial Study/Mitigated On May 18, 2022, the Draft MND was published for public review, which was available until June 17, 2022 for public comment. The public comment period for the Draft MND is now closed. Negative Declaration (MND) has been prepared to analyze any potentially significant environment impacts. 

Final Mitigated Negative Declaration 

On July 26, 2022, the proposed Final MND was considered by the Planning Commission. The Planning Commission recommended approval of the Final MND to City Council. The City Council adopted the Final MND on September 7, 2022.

Documents

Hearings

Contacts

Project Planner
Douglas Spondello, AICP
Community Development Director
805-517-6251
Dspondello@moorparkca.gov 


Project Applicant
John Newton for John Chiu
(805) 529-3494
newtoncnslt@msn.com